Перфоратор SPARKY BPR 240E — сломался цилиндр
Отверстие в бетонной стене большого размера
Необходимо было в доме проделать отверстие в бетонной стене для вентиляции. Вооружившись двумя перфораторами, Metabo и SPARKY BPR 240E, чтобы давать остывать то одному, то другому. А также чтобы меньше переставлять бур на пику. Взялся за работу. Сначала по периметру будущего отверстия насверлил отверстий — буром 6 мм, затем рассверлил их на 12 мм. Так как таким образом сверление проходило по ощущениям быстрее и меньше нагружался перфоратор. Затем все отверстия прошелся буром по диагонали, чтобы убрать перегородки между отверстиями. Пикой в виде долота потихоньку начал выдалбливать кусочки бетона. Всё это дело показалось зря начатым, так как кусочки откалывались очень маленькие.
За один раз пробить дыру в стене не получилось. На следующий день с перфоратором SPARKY BPR 240E в режиме «отбойного молотка» случилось несчастье. Что-то внутри щелкнуло, и появился посторонний шум, по ощущениям как будто, что-то оторвалось.
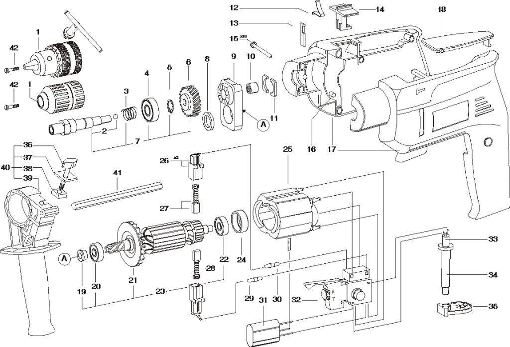
Разбор перфоратора SPARKY BPR 240E
Как разбирать перфоратор я не знал, поэтому наугад открутил 4 болта на редукторе, снял редуктор и сразу стало ясно, что оторвалось. А оторвалось ухо у цилиндра. Собрал всё обратно и занялся поиском цилиндра на BPR 240E. Как выяснилось в процессе поиска, что артикул у цилиндра 127036 (позиция 40 на схеме перфоратора). Точно такой же цилиндр стоит в перфораторе Интерскол П-710, также он может называться гильзой и иметь артикул 010174Y. В итоге всех поисков я нашел этот цилиндр самый дешевый у этого продавца на farpost.ru.
Когда пришел цилиндр, я посмотрел несколько видео на youtube как разбираются и собираются перфораторы, так как я не знал как разобрать патрон. Помогло это видео:
youtube.com/embed/IOx7IT80hk4?feature=oembed” frameborder=”0″ allow=”accelerometer; autoplay; clipboard-write; encrypted-media; gyroscope; picture-in-picture” allowfullscreen=””>Там на 0:45 секунде показано как снять патрон, оказалось не чего сложного, там просто нужно снять резинку. Большинство перфораторов подобного типа имеют схожие редуктора. Поэтому это видео мне помогло разобрать SPARKY BPR 240E полностью и поменять цилиндр. А собирал все детали я уже по схеме самого перфоратор. Все детали редуктора я обильно смазал солидолом. Так как другой смазки под рукой не оказалось.
Схема перфоратора SPARKY BPR 240E
Схему взял с сайта https://benelt.ru
После сборки перфоратор продолжил свою работу, но уже в меньшей доли своего участия всего процесса, так как на «пьяном» подшипнике (позиция 48 на схеме) были сколы, а новый я не заказал.
Вентиляционное отверстие в бетонной стене в итоге пробил
В итоге вентиляционное отверстие в стене было пробито с помощью кувалды и пальца от трака трактора.
Пальцу придал форму зубила с помощью «болгарки». Перфоратором и пикой расширял просверленные отверстия в бетоне и затем вставлял в них палец и кувалдой загонял его на сколько это возможно, а потом ударами верх, вниз, право, влево расшатывал его и таким методом выламывались большие куски бетона.
Инструкция Перфоратора Sparky BPR 181 Е на русском
В представленном списке руководства для конкретной модели Перфоратора – Sparky BPR 181 Е. Вы можете скачать инструкции к себе на компьютер или просмотреть онлайн на страницах сайта бесплатно или распечатать.
В случае если инструкция на русском не полная или нужна дополнительная информация по этому устройству, если вам нужны
дополнительные файлы: драйвера, дополнительное руководство пользователя (производители зачастую для каждого
продукта делают несколько различных документов технической помощи и руководств), свежая версия прошивки, то
вы можете задать вопрос администраторам или всем пользователям сайта, все постараются оперативно отреагировать
на ваш запрос и как можно быстрее помочь.
| sparky-bpr-181-e-guide.pdf | Руководство пользователя | |
| sparky-bpr-181-e-certificate.doc | Скачать сертификат соответствия |
Скачать
Для многих товаров, для работы с Sparky BPR 181 Е могут понадобиться различные дополнительные файлы: драйвера, патчи, обновления, программы установки. Вы можете скачать онлайн эти файлы для конкретнй модели Sparky BPR 181 Е или добавить свои для бесплатного скачивания другим посетителями.
| Файлов не найдено |
Если вы не нашли файлов и документов для этой модели то можете посмотреть интсрукции для похожих товаров и моделей, так как они зачастую отличаются небольшим изменениями и взаимодополняемы.
Обязательно напишите несколько слов о преобретенном вами товаре, чтобы каждый мог ознакомиться с вашим отзывом или вопросом. Проявляйте активность что как можно бльше людей смогли узнать мнение настоящих людей которые уже пользовались Sparky BPR 181 Е.
Анатолий
2017-09-01 23:23:55Очень хороший аппарат, пользуюсь им больше 15 лет.
Сергей Ворошилов
2019-08-26 18:32:59Отличный аппарат пользуюсь более 5 лет
Основные и самые важные характеристики модели собраны из надежных источников и по характеристикам можно найти похожие модели.
| Общие характеристики | |
| Тип крепления бура/сверла | SDS-Plus |
| Количество скоростей работы | 1 |
| Потребляемая мощность | 450 Вт |
| Макс. частота ударов | 3680 уд/мин |
| Макс. энергия удара | 1.3 Дж |
| Макс. диаметр сверления (дерево) | 30 мм |
Макс. диаметр сверления (металл) | 13 мм |
| Макс. диаметр сверления (бетон) | 18 мм |
| Питание | от сети |
| Функции и возможности | |
| Режимы работы | сверление, сверление с ударом |
| Шуруповерт | есть |
| Возможности | реверс, предохранительная муфта, электронная регулировка частоты вращения |
| Дополнительная информация | |
| Приспособления | дополнительная рукоятка, ограничитель глубины сверления, блокировка кнопки включения |
| Вес | 2.3 кг |
Здесь представлен список самых частых и распространенных поломок и неисправностей у Перфораторов. Если у вас такая поломка то вам повезло, это типовая неисправность для Sparky BPR 181 Е и вы можете задать вопрос о том как ее устранить и вам быстро ответят или же прочитайте в вопросах и ответах ниже.
| Название поломки | Описание поломки | Действие |
|---|---|---|
| Появление Трещин На Стволах | ||
| Разлом Бойка Ударного Механизма | ||
| Катастрофический Износ Внутренней Поверхности Ствола | ||
| Повреждения Зубов Шестерен | ||
| Поломка Муфты Сцепления | ||
| Выход Из Строя Опорного Подшипника | ||
| Появление Задиров На Ламелях У Якоря | ||
| Износ Защитной “Бронировки” Обмоток Электродвигателя | ||
| Не Работает Клавиша Включения | При Нажатии На Клавишу Не Включается | |
| Отключается После 1 Минуты Работы | Загорается Красный Светодиод На Корпусе | |
| Отключается После 1 Минуты Работы | Загорается Красный Светодиод На Корпусе | |
| Разлом Бойка Ударного Механизма | Заміна Боцка На Даний Момент Є Сильний Удар Бойка І Відчувається Сильний Храп | |
Застряло Сверло. Не Вынимается. | В Патроне Застряло Сверло. Как Его Можно Безболезненно Вынуть? | |
| Нет Вращения По Часовой Стрелке,Против Часовой Работает Нормально | ||
| Замена Щеток | ||
| Слабая Энергия Удара | Перфоратор Работает Но Не Сверлит Бетон-Кирпич | |
| Не Крутит | Не Крутит, При Проворачивании Патрона Начинает Схватывать | |
| Поломка Ротора | ||
| Смазка | Сильный Запах При Работе | |
| Не Держится Гайка | ||
| Не Работает Переключатель Режимов | Не Включает Ни Один Режим | |
| Перелом Растровой Трубки | Перелом Растровой Трубки Т Е Ствола От Какого Перфоратора Может Подойти | |
| Двигатель Работает , Сверло Не Не Крутит А Отбойник Работает | Вечером Отдолбил Широты Отбойщиком , Включил Утром На Сверление И К Моему Удевлению Перфоратор Не Сверлит Но Двигатель Работает. В Чем Причина Не Знаю!!! | |
| Перфоратор Ferm Ebf-850K | Сломан Поршневой Палец | |
| Стопорное Кольцо | Развалилось | |
| Слабый Удар | Как Снимается Нижний Переключатель? | |
| Не Работает Режим Удар | Не Переключается Режим Удар,Режим Удар-Сверление Работает |
В нашей базе сейчас зарегестрированно 18 353 сервиса в 513 города России, Беларусии, Казахстана и Украины.
ОРГТЕХПРОМ
⭐ ⭐ ⭐ ⭐ ⭐
Адресс:
ул. Островитяпова, д.25, корп. 2
Телефон:
74956496155
Сайт:
n/a
Время работы
Время работы не указано
МИР И СЕРВИС – ПРОФ
⭐ ⭐ ⭐ ⭐ ⭐
Адресс:
шоссе Варшавское, д. 143а стр 2
Телефон:
74957440014
Сайт:
n/a
Время работы
Время работы не указано
САД И КОЛЕСО
⭐ ⭐ ⭐ ⭐ ⭐
Адресс:
Варшавское шоссе д.125 стр.1
Телефон:
74957817971
Сайт:
n/a
Время работы
Время работы не указано
ОЛИМП
⭐ ⭐ ⭐ ⭐ ⭐
Адресс:
Краснобоготырская д.
2
Телефон:
74993902898
Сайт:
n/a
Время работы
Будни: с 1000 до 1900
Суббота: с 1000 до 1700
Воскресенье: выходной
ЧЕРТАНОВО-БЫТ
⭐ ⭐ ⭐ ⭐ ⭐
Адресс:
ул. Академика Янгеля д.14 к.5 стр.2
Телефон:
74956422423
Сайт:
n/a
Время работы
Будни: с 1000 до 1900
Суббота: с 1000 до 1400
Воскресенье: выходной
Инструменты и шаблоны для вырубки жести для самодельщиков
Предупреждение Файлы cookie используются на этом сайте для обеспечения наилучшего взаимодействия с пользователем. Если вы продолжите, мы предполагаем, что вы согласны получать файлы cookie с этого сайта. ОК
| Для любителей делать все своими руками | |||||
| От инструментов для вырубки жести до шаблонов для высечки жести и пустой жести, Мы предлагаем все, что вам нужно, чтобы начать заниматься этим ремеслом: | |||||
Мы поставляем превосходный выбор из более чем 100 моделей жестяных штампов.![]() Двадцать три различных типа инструментов для пробивания жести, разработанных компанией Country Accents специально для пробивки жести. Принадлежности для жестяных пробойников, такие как молотки, защитные перчатки, абразивные подушечки и древесностружечная плита, которые помогут вам выполнить ваши проекты по жестяным пробойникам. Металлические заготовки различных размеров для вашего проекта оловянного перфоратора, такие как настоящая жесть, твердая медь и латунь, муравей. Олово, состаренная медь и латунь. | | ||||
Планы, чертежи с размерами, инструменты для штамповки, список материалов и полные инструкции, три разных набора шаблонов и заготовки из металла… Нажмите здесь, чтобы ознакомиться с планами безопасности Pie | |
Фонари Revere и лампы в шляпах ведьм были фаворитами с самого начала истории Америки. Мы предлагаем наборы для их воссоздания. Доступны также дополнительные наборы металла, которые можно использовать снова и снова с оригинальными шаблонами в комплекте. Инструменты, металл, полные инструкции и шаблоны включены в эти наборы для штамповки жести. | |
| Для начинающих в этом ремесле, мы предлагаем наш популярный набор BK-101 для штамповки жести, который включает в себя 5 кусков жести, базовый инструмент для прокалывания металла, четыре шаблона, инструкции по штамповке и отделке металла! Набор для начинающих здесь
| |||
| | |||
Базовый I, шаблон для высечки жести и набор инструментов содержит 10 шаблонов для высечки жести, один универсальный точечный инструмент и полные инструкции по вырубке жести. нажмите здесь, чтобы заказать Книга 1
| |||
Базовый II, шаблон для высечки жести и набор инструментов содержит 10 шаблонов для высечки жести, один универсальный точечный инструмент, долото для изготовления ламп и полные инструкции по вырубке жести. нажмите здесь, чтобы заказать Книга 2
| |||
| Базовый III, шаблон для высечки жести и набор инструментов содержит 10 шаблонов для высечки жести, один универсальный точечный инструмент, два зубила для изготовления ламп, пуансон C и полные инструкции по вырубке жести. Нажмите здесь, чтобы заказать Книга 3
| |||
Изготовление перфоратора для пенополистирола своими руками | SNAP Hydroponics Manual
Узнайте, как сделать перфоратор для пенополистирола своими руками с помощью этого подробного руководства.
пошаговое руководство.
В системе SNAP Hydroponics используется ящик для выращивания, содержащий питательный раствор. и держите пробки для рассады на месте. Один из этапов изготовления ящиков для выращивания добавить отверстия в верхней половине пенополистирола, где будут пробки для рассады соответствовать. Один из способов добиться этого — использовать самодельный (DIY) инструмент из пустых жестяных банок.
Материалы#
Пустая консервная банка#
Пустая консервная банка диаметром три дюйма. Они довольно распространены, так как олово банки соответствуют стандартным размерам. Чтобы проверить, подойдут ли отверстия, сделанные консервной банкой чашку из пенополистирола, прикрепите их к самой банке, как показано на рисунке ниже.
Стаканы из пенополистирола на восемь унций хорошо подходят для жестяных банок диаметром 3 дюйма. Рекомендуется использовать жестяные банки с ребрами по бокам.
боковая жесткость банки и позволяет ей удерживать свою круглую структуру даже
когда край банки был отрезан, чтобы заточить режущую кромку.
Бамбуковые палочки#
Пара бамбуковых палочек или других материалов, достаточно прочных, чтобы служить ручками для инструмент. Для бамбуковых палочек рекомендуется сделать пару из них, разделив одну бамбуковую палку толщиной полдюйма в пару четверть дюйма, разделив приклеить вдоль волокон. Он должен быть достаточно длинным, чтобы проходить по диаметру жестяная банка и иметь около трех дюймов, выступающих из сторон банки. Делать обязательно сгладьте края, а также обрезанные концы бамбуковых палочек, чтобы удалить осколки и острые края.
Использование цельного куска бамбука экономит время и силы. Однако колебательное движение
этот инструмент испытает во время использования, испортит его довольно быстро. Ручки будут
оказывать давление на отверстия, где они проходят через банку. Стороны банки
очень тонкий и мягкий. Давления, оказываемого бамбуковой палкой, будет достаточно.
увеличить его, и довольно скоро он станет слишком большим, чтобы инструмент мог быть полезен.
Соединив крышку двумя кусками бамбука, связанными вместе,
силу на крышку, которая сможет справиться с этими силами.
Резиновая лента или другой крепежный материал#
Резиновая лента или другой материал, которым можно связать пару палок. Крепкий Длина веревки или лески тоже подойдет.
Инструменты#
Кромку на открытом конце жестяной банки необходимо срезать, чтобы острая режущая кромка. Для этого потребуется пара ножниц по металлу.
Ножницы по металлу необходимы, чтобы сделать острую режущую кромку перфоратора.Также потребуется кусок бамбуковой палки с заостренным концом. Он будет использоваться для добавьте отверстия по бокам банки, через которые будут проходить ручки. Должно быть около 3-5 дюймов в длину с тем же поперечным сечением, что и материал, который будет использоваться в качестве ручек.
Инструмент для проделывания отверстий для ручки. Нож или боло для работы с бамбуком и консервной банкой; и консервный нож, чтобы
также требуется полностью открыть один конец жестяной банки.
Процедура#
Начните с использования консервного ножа, чтобы полностью открыть один конец жестяной банки.
С помощью ножа или боло сделать Т-образный надрез на одной стороне банки рядом с закрытым конец. Этот Т-образный вырез гарантирует, что отверстие будет отцентровано и ровно. при увеличении с помощью остроконечной бамбуковой палочки.
Т-образный вырез у закрытого конца жестяной банки.Используя наш бамбуковый инструмент, увеличьте Т-образный разрез, чтобы сделать отверстие большего размера. Используйте любой инструмент подходящего размера, чтобы забить его через банку.
Увеличьте отверстие, вбивая в него бамбуковый инструмент.Т-образный вырез обеспечивает равномерное увеличение отверстия и его центрирование. как показано на рисунке ниже. Повторите этот процесс на противоположной стороне может.
Бамбуковый инструмент хорошо отцентрован. Вставьте одну из бамбуковых палочек в ранее сделанные отверстия. Убедитесь, что это
по центру, чтобы длина ручек была одинаковой.
диаметр сверления (металл)
Не Вынимается.
В Чем Причина Не Знаю!!!
нажмите здесь, чтобы заказать Книга 1